1 / 0















+ 3
Highlights
Specifications
Flex function for combining the rectangular cooking areas
Free positioning of cookware inside combined cooking areas
Highly efficient ventilation system integrated in the cooktop
Fully automatic ventilation system functions
Large-scale metal grease filter with high grease absorption
Energy-saving, low-noise fan
Air extraction or air recirculation system
Air recirculation module with activated charcoal filters: space-saving ducting integrated in the lower cabinet as well as easy filter replacement
Twist-Pad control with removable magnetic knob
Easy control of all functions with bicoloured display
2 flex induction cooking areas 19x23 cm (2200 W, with booster 3700 W), linked together 38x23 cm (3300 W, with booster 3700 W).
Performance and noise output levels:
Air output according to EN 61591.
Sound power level according to EN 60704-3.
Air extraction (min/max): 380 / 690m³/h.
Nois air extraction (min/max): 61 / 75 dB(A).
Air recirculation (min/max): 505 / 620m³/h.
Noise recirculation (min/max): 71 / 75 dB(A).
Odour reduction air recirculation 89 %.
Twist-Pad control with removable magnetic knob.
User friendly control with bicoloured display (white / orange).
Cooking zone and cooking area marking.
Electronic power control of the cooking zone in 17 cooking power levels.
Control of ventilation system with 3 electronically controlled power levels and 1 intensive mode.
Flex function for rectangular cooking areas.
Automatic pot detection when the cooktop is switched on.
Professional cooking function.
Frying sensor function.
Booster function for pots.
Booster function for pans.
Keep warm function.
Automatic sensor-controlled performance adjustment of the ventilation system.
Automatic activation of the ventilation system when a cooking zone is used.
Interval ventilation, 6 min.
Sensor-controlled run-on function.
Grease filter and air recirculation filter saturation indicator.
Removable, dishwasher-safe grease filter unit.
Enamelled, dishwasher-safe cover for ventilation system.
Fan technology with highly efficient, brushless DC motor (BLDC).
Airflow-optimised interior for efficient air circulation.
Stopwatch.
Cooking timer for up to 99 minutes.
Short-term timer.
Memory function.
Options menu.
Power management.
Sound level min/max (intensive) according to EN 61591: 61 / 75 dB(A)
Main switch.
Operation indicator.
Pot detection.
digital 2-step
Child lock.
Safety shut-off.
Detachable, dishwasher-safe two-stage overflow protection.
Removable overflow container, 2-litre capacity, dishwasher-safe.
Grease filter detection.
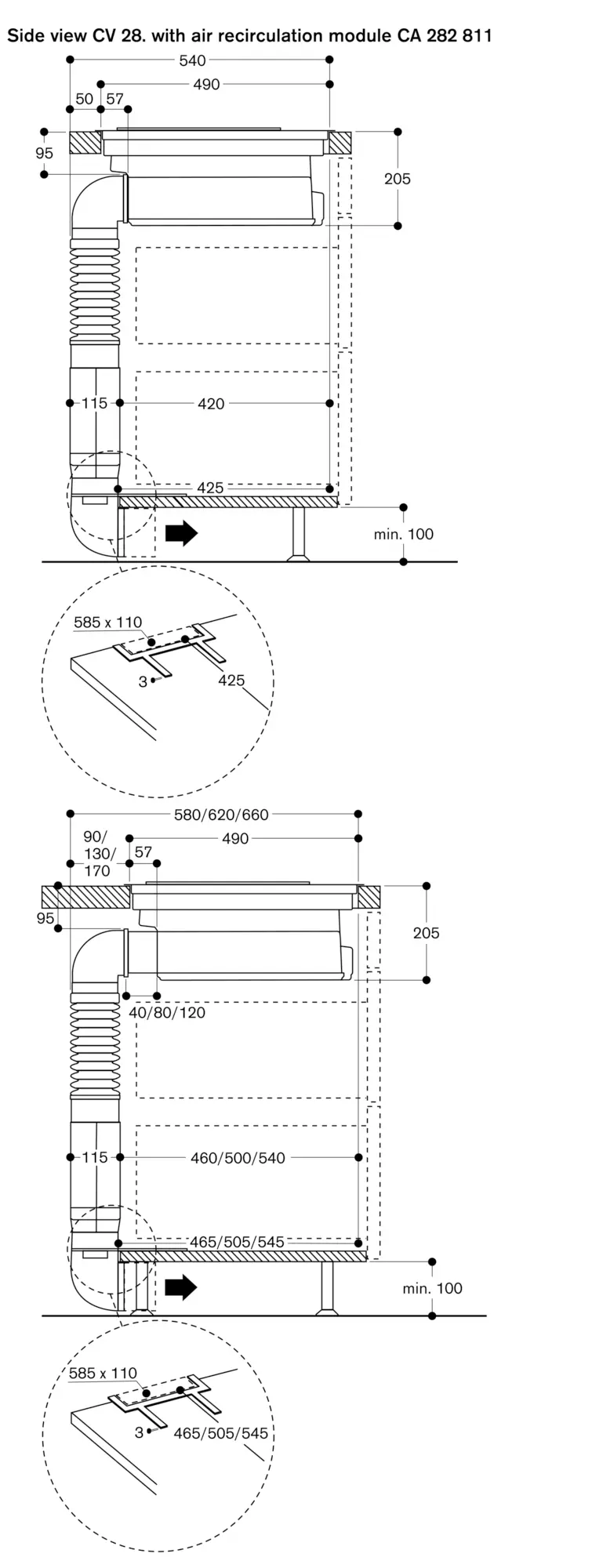
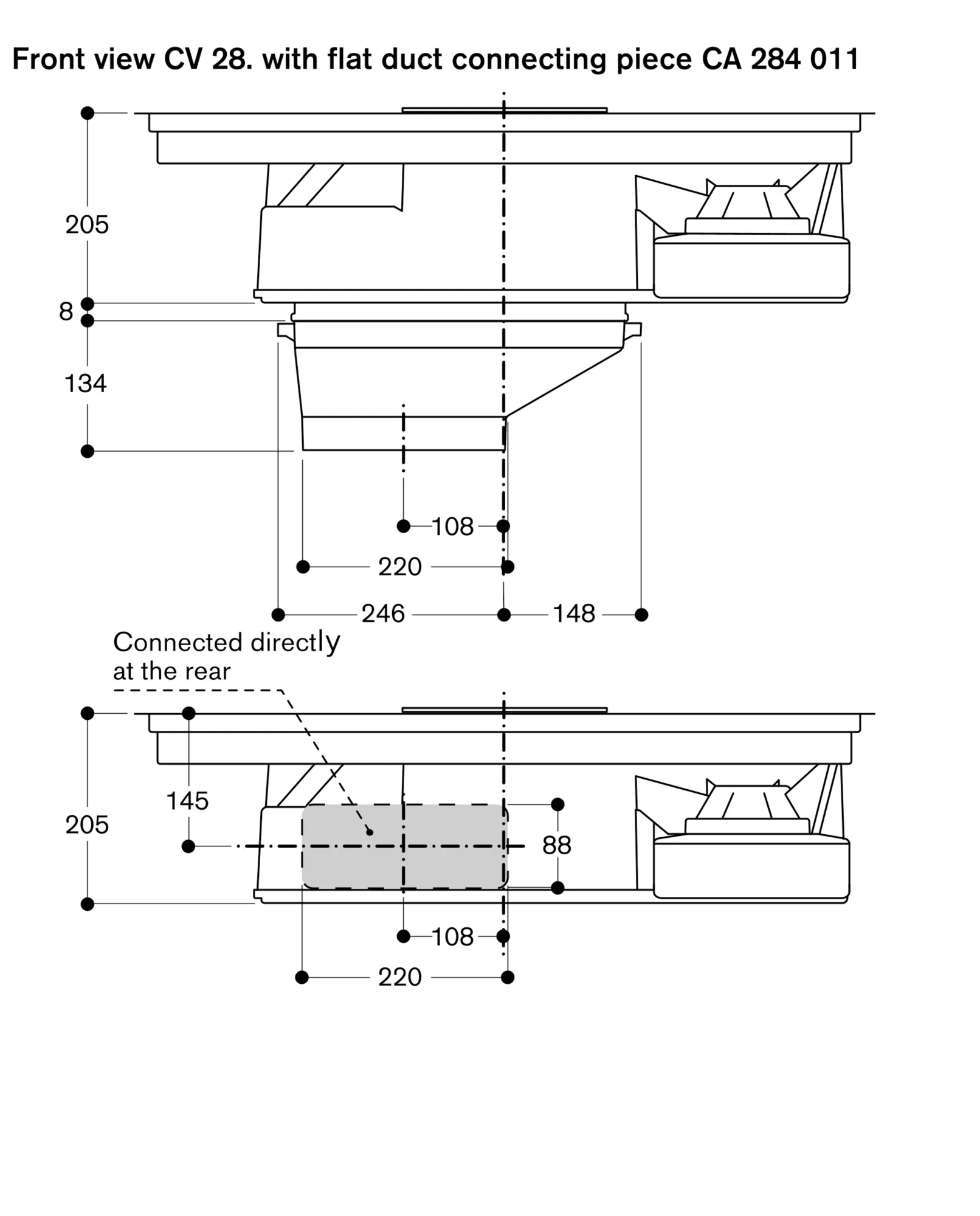
Bottom cabinet width: min. 80 cm.
Worktop depth: min. 60 cm, with shortened drawers. Full drawer depth can be used from 70 cm.
Immersion depth 205 mm.
Ducting system for air extraction or air recirculation must be ordered separately as a special accessory.
Connection piece for air extraction: flat duct DN 150.
In air extraction a one-way flap with a maximum opening pressure of 65 Pa should be installed.
For optimum performance in air recirculation we recommend an outflow surface area of at least 720 cm².
Operates with magnetic (induction) iron pots and pans only. For an optimal heat distribution, the use of sandwich bottom cookware is recommended.
Appliance must be fixed from underneath.
Appliance weight: approx. 31. kg
The appliance must be freely accessible from below.
When installing a ventilation hood with air extraction mode and a chimney-vented fireplace, the power supply line of the ventilation appliance needs a suitable safety switch.
The bearing capacity and stability, in the case of thin worktops in particular, must be supported using suitable substructures. Take into account the appliance weight and additional loads.
Installation is possible in worktops made of stone, synthetics or solid wood. Heat resistance and watertight sealing of the cut edges must be observed. Concerning other materials please consult the worktop manufacturer.
The groove must be continuous and even, so that uniform placing of the appliance on the gasket is ensured. Do not use discontinuous lining.
Joint width may vary due to dimensional tolerances of the glass ceramic cooktop and the worktop cut-out.
Total connected load 7.4 KW.
Connecting cable 1.50 m without plug.